Potty Project

  • Project Leader

    Renu Khosla

  • Organisation

    CURE

  • Designed By

    Julia King

  • Project Location

    New Delhi (India)

  • Project website

    www.julia-king.com/research/savda-ghevra/

  • Name of nominating Icsid Member organisation

    University of Brighton

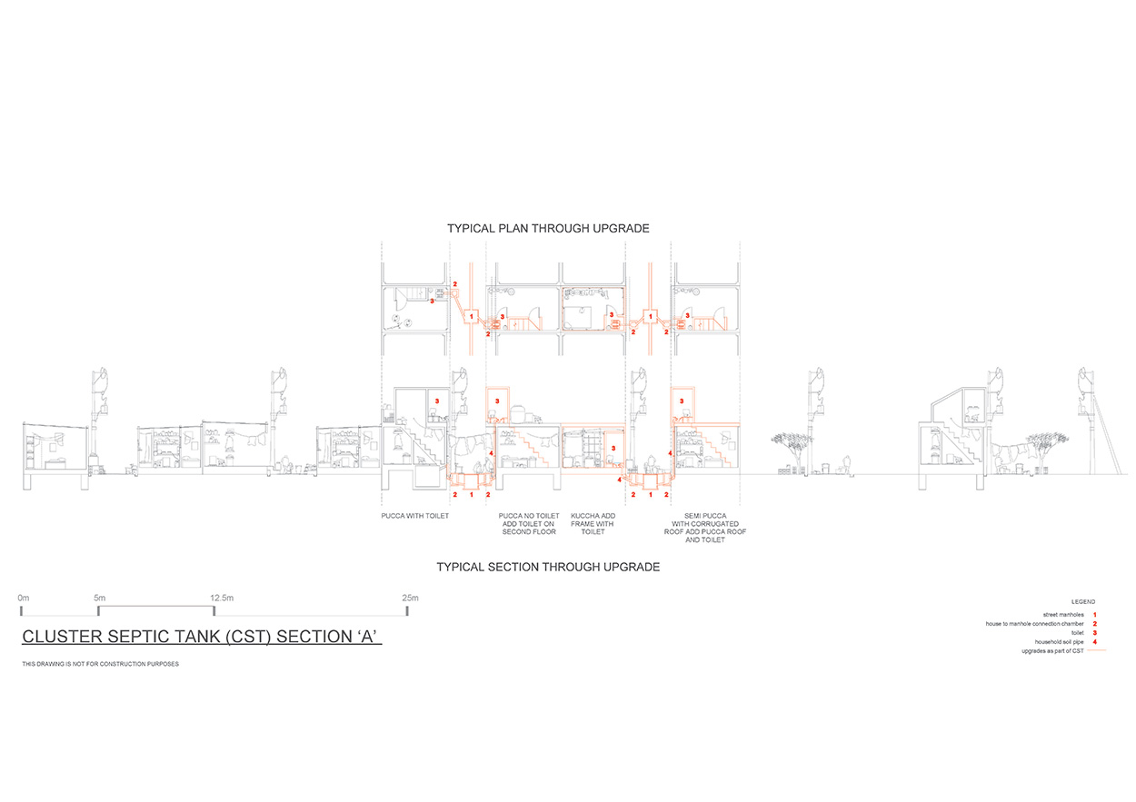
The Potty Project is an equitable sanitation system that enables 322 households to retrofit toilets to their homes. Home toilets are a safe, healthy, dignified and preferred sanitation option, especially for women and young girls. The toilets are connected through common shallow sewers to a septic tank linked to a simplified decentralized treatment system that treats the effluent before discharge and re-uses it exhibiting a ‘cradle-to-cradle’ solution which turns waste into profit. The innovation has not been in the delivery of the infrastructure but in the way we have retrofitted the system and engaged with the community. Because no house is alike marrying the technology to the individual needs of each household has required lots of small detailing and careful consideration of what exists and making that better. Much of this has happened by having street level meetings and walking around the site with engineers. The best analogy to describe the project is a charm bracelet of ideas/technologies … each charm on its own is not special; it is the combination of all that makes the project unique.

Given the complexity of retrofitting sanitation The Potty Project uses a “whole-systems” approach which has 6 main aspects:

  • Assisting in the design and implementation of in-house toilets;
  • Designing and planning for decentralized sewers and a septic tank to manage the effluent;
  • Designing and planning an on-site treatment in the form of micro-DEWATS;
  • House upgrades to accommodate the new toilet and connection to sewer system;
  • Community mobilization to ensure the viability, replicability and sustainability of the project; and finally
  • Access to finances to facilitate these investments.

The project links together the various elements of the sanitation value chain – home toilets, drainage, conveyance and treatment systems, recycling, and reuse – to the advantage of poor households.

The project began during community workshops run by CURE (Centre for Urban and Regional Excellence), a local development NGO and Julia King a PhD student researching housing in the area in 2010. Sanitation was the issue of primary concerns to the residents. The team began thinking about what kind of solutions were possible technically, socially and economically. This involved consulting with the state, engineers, planners but also with the community. A process that required not only galvanizing them into forming community structures such as the operation and maintenance (O&M) team, but getting the government on board and finding funds for the pilot project.

Videos

Photos